Tonttipörssi /

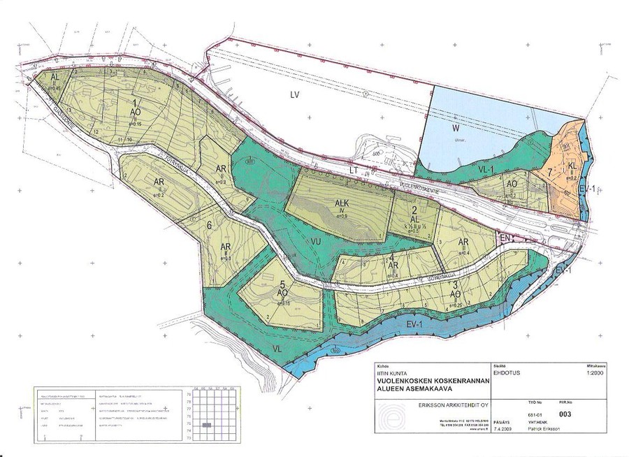
Rivitalotontteja Töyrynkujalla

Tontti

Kohteen Kuvaus

Eri kokoisia rivitalotontteja myynnissä. Soita ja kysy lisää Timo Turunen p. 050-321 7200 ja Eero Nuutinen p. 0400-222 676 tai omakyla@vuolenkoski.fi. Rivitalo korttelissa 1 tontilla 9 valmistunut juhannuksena 2012. Rivitalokohteiden yhteistyökumppaneita etsitään edelleen lisää. Rivitalotontteja löytyy yhteensä 13 rivitalolle. Rivitaloille kaavoitetut tontit on merkitty kaavaan tunnuksella AR.

Sijainti kartalla

Yhteystiedot

Myyjä
Omakylä Vuolenkoski Oy
Puh.
044-788 7878